Zum Hauptinhalt springen

Abbildung ähnlich

Produktgruppe : T600 | Stahlgitterfestwiderstände
Baureihe : FGFK 31

FGFK 31436

Stahlgitterfestwiderstandsgerät in Schutzart IP20 bei Montage auf einer geeigneten Oberfläche, im verzinkten Stahlblechgehäuse mit max. 2 Klemmen verschiedener Art für den Widerstand im angebauten Klemmenkasten; Temperaturschalter ist möglich

Elektrische Daten

Leistung

18,0 kW

Fertigungsbereich Ohmwert

0.79 Ohm - 201 Ohm

Schutzart

IP20 Bei Montage auf einer geeigneten Oberfläche

Spannungsbereich

bis 3 x 500 VAC und abgeleitete Gleichspannungen

Optionen

  • UL-Zulassung
  • Temperaturschalter (Typ FGFKQ)
Mechanische Daten

Gewicht

40 kg

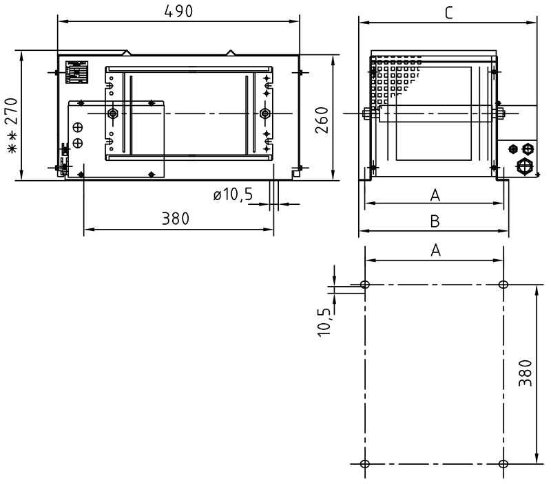
Abmessungen

A: 970 mm B: 995 mm C: 1055 mm
Datenblatt
Maßbild